※ 매물의 상세지번은 소유주 요청으로 공개가 어렵습니다.
용인 양지면 평창리 소규모 아기자기한 타운하우스 단지
사방에 산이 병풍처럼 둘러져 있어
그림같이 예쁘고 아담한 전원주택 단지
그곳에 들어서는 8세대 각기 다른 컬러, 구조로
아기자기한 그림같은 타운하우스 소개합니다.
8세대 중 2세대
내가살고싶은집에서 함께합니다.
6세대는 현재 건축이 완료되었고,
거주중인 주택도 있는 단지입니다.
기본 방3개 욕실 2개 기준으로 설계되었습니다.
소재지 : 경기도 용인시 처인구 양지면 평창리
제일초등학교 차로 5분
용동중학교 학군, 단지 앞 버스 이용
나만의 스타일로 지어지는 예쁜 주택.
우리가족의 삶에 힐링을 줄 우리집만의 정원가꾸기.
아이들과 마음껏 뛰어놀고, 예쁜 정원을 가꿀 수 있는. 전원주택입니다.
''사방이 트인 곳에서 누리는 개방감과 평온함"
"햇빛 잘 드는 평지, 넓은 하늘 아래 누리는 전원생활"
단지 앞 8m 도로 확장 예정
하천길 따라 즐기는 여유로운 산책
그럼~ 위치와 사진 함께 보실까요?~
[ 평창리 8세대 위치안내도 ]

[ 단지분할도&평면도 ]

2세대중 1호 1층 평면도

2세대중 1호 2층 평면도
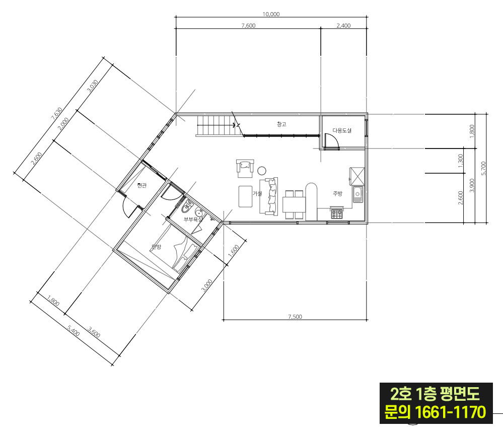
2세대중 2호 1층 평면도

2세대중 2호 2층 평면도
[ 이런 주택으로 꾸미면 어떨까요? ]









[ 단지 현장스케치 ]



















[ 단지 컨셉 ]









인테리어 컨셉
양지 평창리 단층주택의 그림이 점점 그려져가고 있습니다.
오늘은 인테리어 컨셉을 위한 이미지를 올려보려 합니다.
정말 살고 싶은 집! 힐링이 되는 집! 작은 공간 하나에도 신경써서고객과 함께 만들어갈 집
내가살고싶은집에서 함께 그려가겠습니다.














용인 양지면 평창리 소규모 아기자기한 타운하우스 단지
사방에 산이 병풍처럼 둘러져 있어
그림같이 예쁘고 아담한 전원주택 단지
그곳에 들어서는 8세대 각기 다른 컬러, 구조로
아기자기한 그림같은 타운하우스 소개합니다.
8세대 중 2세대
내가살고싶은집에서 함께합니다.
6세대는 현재 건축이 완료되었고,
거주중인 주택도 있는 단지입니다.
기본 방3개 욕실 2개 기준으로 설계되었습니다.
소재지 : 경기도 용인시 처인구 양지면 평창리
제일초등학교 차로 5분
용동중학교 학군, 단지 앞 버스 이용
나만의 스타일로 지어지는 예쁜 주택.
우리가족의 삶에 힐링을 줄 우리집만의 정원가꾸기.
아이들과 마음껏 뛰어놀고, 예쁜 정원을 가꿀 수 있는. 전원주택입니다.
''사방이 트인 곳에서 누리는 개방감과 평온함"
"햇빛 잘 드는 평지, 넓은 하늘 아래 누리는 전원생활"
단지 앞 8m 도로 확장 예정
하천길 따라 즐기는 여유로운 산책
그럼~ 위치와 사진 함께 보실까요?~
[ 평창리 8세대 위치안내도 ]

[ 단지분할도&평면도 ]

2세대중 1호 1층 평면도

2세대중 1호 2층 평면도
2세대중 2호 1층 평면도

2세대중 2호 2층 평면도
[ 이런 주택으로 꾸미면 어떨까요? ]









[ 단지 현장스케치 ]



















[ 단지 컨셉 ]









인테리어 컨셉
양지 평창리 단층주택의 그림이 점점 그려져가고 있습니다.
오늘은 인테리어 컨셉을 위한 이미지를 올려보려 합니다.
정말 살고 싶은 집! 힐링이 되는 집! 작은 공간 하나에도 신경써서고객과 함께 만들어갈 집
내가살고싶은집에서 함께 그려가겠습니다.













